NEW

新築住宅 光貞台3丁目3期 2号

3,098万円

福岡県北九州市八幡西区光貞台3丁目

筑豊本線「本城」駅徒歩27分

鹿児島本線「折尾」駅徒歩42分

筑豊本線「二島」駅徒歩48分

価格
3,098万円
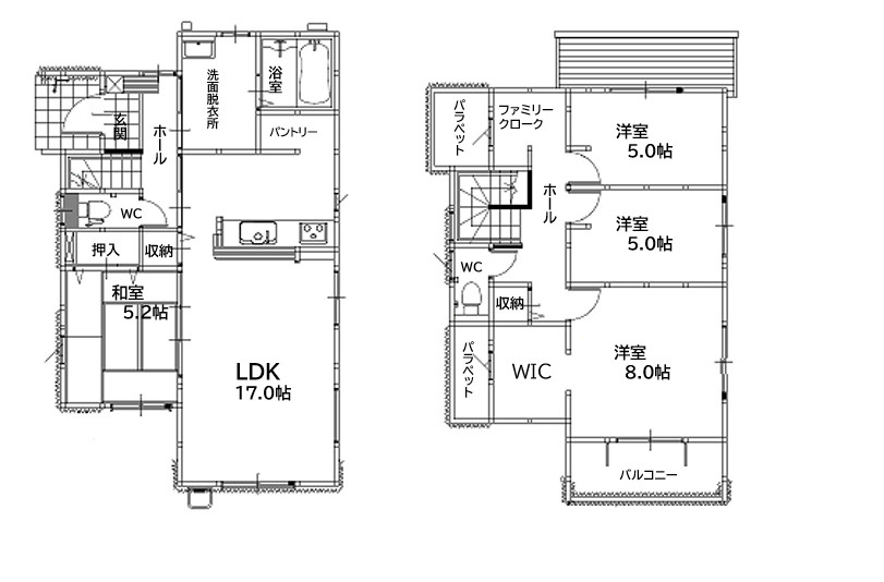
間取り
4LDK
土地面積
194.37㎡
所在地
福岡県北九州市八幡西区光貞台3丁目
交通

筑豊本線本城」駅 徒歩27分

鹿児島本線折尾」駅 徒歩42分

筑豊本線二島」駅 徒歩48分

建物面積
115.53㎡
築年月
2024年11月(新築)

物件の特徴

  • バストイレ別

  • 室内洗濯機置場

  • TVモニタ付きインターホン

  • カウンターキッチン

  • 浴室乾燥機

セールスポイント

トイレが2ヶ所にあるので複数人でも快適に暮らせます。ゆとりのある快適なお住まいをお探しの場合は当社の4LDKの物件はいかがでしょうか。通勤でバイクを利用している方にも嬉しいバイク置き場付きです。ケイコムエステートならではの戸建て情報を、北九州市八幡西区より豊富にご紹介しております。ぜひmain@kcom-est.comからご依頼下さい。

ポイント

TVモニタ付インターホン 納戸 LDK20帖以上 温水洗浄便座 整形地

担当者のコメント

わたなべ     

戸建て物件をご検討なら、コチラの新築の物件をご覧ください。訪問者をカメラで確認できるTVインターホン設置済み。捨てずに取っておきたい物も、大容量の納戸なら収納しておけます。こちらの物件は南向きです。住まい選びのお手伝いを当社にさせていただけませんか。お客様が安心して暮らしていける不動産の紹介をしています。ぜひ当社の利用をご検討ください。

基本情報

販売戸数
-
総戸数
-
間取り / 詳細
4LDK
LDK 20.0帖/洋室 9.0帖/洋室 5.5帖/洋室 5.2帖/和室 4.5帖
向き
建物面積(坪数)
115.53㎡(34.94坪)
土地面積(坪数)
194.37㎡(58.79坪)
建ぺい率 /
容積率
50%/80%
築年月
2024年11月(新築)
駐車場 /
月額料金
有(3台) -
土地権利
所有権
土地
(敷金 / 保証金)
- / -
建物構造
木造 / 2階建
傾斜地部分面積
-
路地状敷地
-
私道負担面積
-
セットバック
高圧線下面積
-
施工会社
-
用途地域
-
地目 / 地勢
宅地 / -
接道状況
-(西 公道 2.8m 間口 8.2m)
国土法届出要否
不要
都市計画
市街化区域
総区画数 /
販売区画数
-/-
現況
完成済み
その他
法令上の制限
-
取引態様
一般媒介
引渡し
相談
取引条件の
有効期限
2025年12月18日

設備条件

設備条件
  • 室内洗濯機置場 / フローリング / バルコニー / 都市ガス / 公営水道 / 公共下水 / 電気有 / 2面バルコニー / 駐輪場 / バイク置場あり / 駐車3台可 / ガスコンロ / 食器洗い乾燥機 / カウンターキッチン / バス・トイレ別 / 追焚機能浴室 / 浴室乾燥機 / 温水洗浄便座 / 洗面台 / 洗髪洗面化粧台 / トイレ2ヶ所 / 浴室1坪以上 / 床下収納 / ウォークインクロゼット / 収納豊富 / TVモニタ付インターホン / 複層ガラス
設備(その他)
    -

その他

物件番号
89554710
管理コード
-
建築確認番号
第KJH24-00973-1号
情報更新日
2025年12月04日
次回更新予定日
2025年12月18日
取扱会社
  • 土地空間堂
  • 福岡県北九州市八幡西区永犬丸5丁目2-20 
  • TEL:093-695-1238
  • 福岡県知事 (1) 第20997号
  • 公益社団法人 福岡県宅地建物取引業
備考
「新築住宅 光貞台3丁目3期」のここがイチオシ。4人家族にぴったりの広さのある4LDKの物件情報は当社まで。浴室追焚機能を上手に使えば、水道料金を抑えることができます。北九州市八幡西区にお引越しをするなら、新生活に相応しい一戸建てをケイコムエステートがご提供致します。093-695-1238、main@kcom-est.comまでご依頼下さい。

新築住宅 光貞台3丁目3期の他の物件

  1. 1号

    4LDK (104.75㎡)

    2,898万円(91.48万円/坪)

周辺施設

  • カーニバルプラスひびきの店の画像

    スーパー

    カーニバルプラスひびきの店

    1764m(23分)

  • ホームプラザナフコ学研都市ひびきの店の画像

    ホームセンター

    ホームプラザナフコ学研都市ひびきの店

    1956m(25分)

  • ディスカウントドラッグコスモスひびきの店の画像

    ドラッグストア

    ディスカウントドラッグコスモスひびきの店

    2008m(26分)

  • ファミリーマート若松ひびきの店の画像

    コンビニエンスストア

    ファミリーマート若松ひびきの店

    2339m(30分)

  • 福岡銀行ひびきの支店の画像

    銀行

    福岡銀行ひびきの支店

    2348m(30分)

  • コメダ珈琲 北九州本城店の画像

    喫茶店・カフェ

    コメダ珈琲 北九州本城店

    2689m(34分)

支払いシミュレーション

月々の支払額
9.6
購入希望物件価格
万円
頭金
万円
金利
%
返済額(ボーナス1回分)
万円
返済期間

※ボーナスは自動で年2回分で計算されます。

近隣の物件

  1. 新築住宅 かおっと浅川町

    北九州市八幡西区浅川町

    4LDK (105.99㎡)

    3,340万円

  2. 中古住宅(八幡西区元城町)

    北九州市八幡西区元城町

    4DK (47.93㎡)

    280万円

  3. 北九州市八幡西区町上津役西1丁目2期2号棟

    北九州市八幡西区町上津役西1丁目

    4LDK (113.21㎡)

    2,798万円

  4. 北九州市八幡西区上上津役4丁目1期1号棟

    北九州市八幡西区上上津役4丁目

    4LDK (114.94㎡)

    2,898万円

新築住宅 光貞台3丁目3期

新築住宅 光貞台3丁目3期

3,098万円

-

4LDK(115.53㎡)

お気軽にお問い合わせください

LINEからお問い合わせ 無料お問い合わせ

土地空間堂

093-695-1238

10:00~18:00

(休:毎週水曜日)